Planos y Especificaciones Técnicas:
Los planos deben presentarse en formato PDF, firmados por el diseñador y en tamaño ISO B1 (1000x707mm) en orientación horizontal. Deben incluir:
-
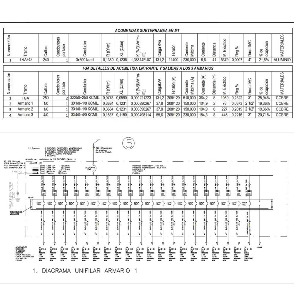
Localización General de Redes de M.T, B.T y A.P: Detalla las canalizaciones y estructuras existentes y proyectadas desde el punto de conexión, incluyendo identificación de equipos como transformadores, reconectadores y seccionamientos, así como puntos físicos de postes, cámaras y subestaciones.
-
Planta General de Ubicación Proyectada: Muestra la disposición de los equipos y rutas de las redes de BT en cada nivel de la edificación, considerando distancias de seguridad, rutas de conductores, iluminación y sistemas de puesta a tierra.
-
Listado de Equipos: Incluye todos los componentes utilizados en el diseño, como Tableros Generales de Alumbrado (TGA), armarios y equipos de medida, especificando las normas técnicas aplicables.
-
Cortes (Horizontales y Verticales): Proveen detalles sobre distancias de seguridad, dimensiones de equipos, rutas de conductores y otros aspectos relevantes para la correcta interpretación del diseño.
-
Diagramas Unifilares (Existente y Proyectado): Representaciones esquemáticas que ilustran la interconexión de las redes actuales y las propuestas, incluyendo puntos de conexión, características de los conductores, protecciones y equipotencialización de equipos.
¿Qué Incluye Nuestro Diseño?
✅ Planos y memoria técnica: Cumpliendo con normativas vigentes.
✅ Selección de materiales: Conductores, protecciones y tableros adecuados.
✅ Optimización del trazado: Diseño eficiente para minimizar pérdidas eléctricas.
✅ Gestión documental: Elaboración de planos y documentación para aprobación ante Enel-Codensa.
📌 Aplicaciones del Diseño Serie 4
🔹 Urbanizaciones y conjuntos residenciales.
🔹 Parques industriales y bodegas.
🔹 Edificaciones comerciales y empresariales.
🔹 Infraestructura pública y privada.
📞 Contáctanos para recibir asesoría especializada.










Valoraciones
No hay valoraciones aún.